PWO包络减速机其蜗齿面是以一个平面为母面,通过相对圆周运动,包络出环面蜗杆的 齿面,再以蜗杆的齿面为母线,通过相对运动包络出蜗轮的齿面,称为平面二次包络环面蜗杆副。
PW系列包络减速机包括PWU、PWO、PWS型三种型式,适用于冶金、矿山、起 重、运输、石油、化工、建筑等行业机械设备的减速传动。工作条件为两轴交角为90°;蜗杆转速不超过1500r/min;工作环境温度为0~40℃,当环境温度低于0℃或高于40℃时,启动前润滑油要相应加热或冷却;蜗杆轴可正、反向运转。
PWO系列传动比标记方法
(1)下平面二次包络环面蜗杆减速器;
(2)上平面二次包络环面蜗杆减速器;
(3)侧平面二次包络环面蜗杆减速器。

PWO80、PWO100、PWO125、PWO140、PWO160、PWO180、PWO200、PWO225、PWO250、PWO280、PWO315、PWO355、PWO400、PWO450、PWO500、PWO560、PWO630、PWO710、型平面二次包络环面蜗杆减速机主要尺寸(GB/T16449-1996)

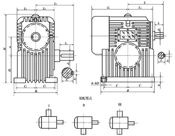
PWO型减速器主要尺寸(整体式) /mm
|
a |
H1 |
B |
B1 |
C |
C1 |
D |
H |
L |
L1 |
L2 |
L3 |
L4 |
L5 |
d1 |
b1 |
t1 |
l1 |
d2 |
b2 |
t2 |
l2 |
h |
|
80 |
125 |
250 |
190 |
112 |
80 |
14 |
300 |
160 |
160 |
125 |
180 |
100 |
90 |
25 |
8 |
28 |
42 |
45 |
14 |
48.5 |
82 |
30 |
|
100 |
160 |
300 |
236 |
130 |
100 |
16 |
375 |
200 |
200 |
160 |
212 |
125 |
118 |
32 |
10 |
35 |
58 |
55 |
16 |
59 |
82 |
35 |
|
125 |
180 |
355 |
280 |
160 |
125 |
18 |
425 |
236 |
236 |
190 |
250 |
150 |
140 |
38 |
10 |
41 |
58 |
65 |
18 |
69 |
105 |
38 |
|
140 |
200 |
400 |
315 |
180 |
140 |
20 |
475 |
265 |
265 |
212 |
280 |
160 |
160 |
42 |
12 |
45 |
82 |
70 |
20 |
74.5 |
105 |
40 |
|
160 |
215 |
450 |
355 |
200 |
160 |
21 |
530 |
300 |
300 |
236 |
315 |
190 |
180 |
48 |
14 |
51.5 |
82 |
80 |
22 |
85 |
130 |
42 |
|
180 |
250 |
500 |
400 |
225 |
180 |
22 |
600 |
335 |
335 |
265 |
355 |
212 |
200 |
56 |
16 |
60 |
82 |
90 |
25 |
95 |
130 |
45 |
|
200 |
280 |
560 |
450 |
250 |
200 |
24 |
670 |
355 |
355 |
300 |
400 |
236 |
224 |
60 |
18 |
64 |
105 |
100 |
28 |
106 |
165 |
50 |
|
225 |
315 |
630 |
500 |
280 |
225 |
26 |
750 |
400 |
400 |
315 |
450 |
265 |
250 |
65 |
18 |
69 |
105 |
110 |
28 |
116 |
165 |
53 |
|
250 |
355 |
670 |
530 |
300 |
250 |
28 |
850 |
450 |
450 |
355 |
500 |
280 |
280 |
70 |
20 |
74.5 |
105 |
125 |
32 |
132 |
165 |
57 |
|
280 |
400 |
800 |
600 |
355 |
280 |
30 |
900 |
475 |
475 |
400 |
560 |
315 |
315 |
85 |
22 |
90 |
130 |
140 |
36 |
148 |
200 |
60 |
|
315 |
450 |
900 |
670 |
375 |
315 |
32 |
1000 |
560 |
560 |
450 |
630 |
355 |
355 |
90 |
25 |
95 |
130 |
150 |
36 |
158 |
200 |
67 |
|
355 |
500 |
1000 |
750 |
425 |
355 |
35 |
1180 |
670 |
670 |
500 |
710 |
400 |
400 |
100 |
28 |
106 |
165 |
170 |
40 |
179 |
240 |
75 |
PWO型减速器主要尺寸(剖分式) /mm
|
a |
H1 |
B |
B1 |
C |
C1 |
D |
H |
L |
L1 |
L2 |
L3 |
L4 |
d1 |
b1 |
t1 |
l1 |
d2 |
b2 |
t2 |
l2 |
h |
|
400 |
500 |
900 |
800 |
400 |
355 |
35 |
1250 |
600 |
600 |
450 |
630 |
375 |
110 |
28 |
116 |
165 |
180 |
45 |
190 |
240 |
55 |
|
450 |
560 |
1000 |
900 |
450 |
400 |
39 |
1400 |
670 |
670 |
500 |
710 |
425 |
125 |
32 |
132 |
165 |
200 |
45 |
210 |
280 |
60 |
|
500 |
630 |
1120 |
1000 |
500 |
450 |
42 |
1600 |
750 |
750 |
560 |
800 |
475 |
130 |
32 |
137 |
200 |
220 |
50 |
231 |
280 |
65 |
|
560 |
710 |
1250 |
1120 |
560 |
500 |
45 |
1800 |
850 |
850 |
630 |
900 |
530 |
150 |
36 |
158 |
200 |
250 |
56 |
262 |
330 |
72 |
|
630 |
800 |
1400 |
1250 |
630 |
560 |
48 |
2000 |
950 |
950 |
710 |
1000 |
600 |
170 |
40 |
179 |
240 |
280 |
63 |
292 |
380 |
80 |
|
710 |
900 |
1600 |
1400 |
710 |
630 |
52 |
2240 |
1060 |
1060 |
800 |
1250 |
670 |
190 |
45 |
200 |
280 |
320 |
70 |
334 |
380 |
88
|